Description

Luxury New-Build Apartment in Bajeskwartier – The Jay (Freehold and Energy Label A++)

Welcome to this stylish and sustainable one-bedroom apartment of approx. 38m² on the 5th floor of The Jay, a residential tower located in the green and vibrant Bajeskwartier in Amsterdam East. Completed at the end of 2024, this brand-new gem sits on freehold land (no leasehold!) and boasts an excellent A++ energy label. Everything is brand new, finished to the highest standard, and fully move-in ready – ideal for anyone looking for comfortable, worry-free living in the city.

F E A T U R E S

• New-build apartment of approx. 38 m², 1 bedroom, 1 bathroom, completed October 2024
• Located on freehold land (no ground lease)
• Energy label A++ valid till August 2034
• (Leased) heat pump with underfloor heating and cooling
• Luxury kitchen with marble-look countertop and cooking island with bar
• Bora induction cooktop with integrated extractor
• Siemens appliances: combi-oven, dishwasher, fridge-freezer
• Herringbone PVC flooring throughout
• French balcony
• High-end finishes and fully move-in ready
• Shared residents-only garden
• On-site co-working space
• Bicycle storage with two private spots
• Neighborhood mobility hub with shared electric cars
• Only 50 meters from Spaklerweg Metro Station

L A Y O U T

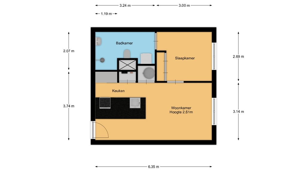
From the shared ground-floor entrance, take the lift or stairs to the 5th floor, where only eight apartments are located. The apartment opens into a bright, efficiently designed space with an open kitchen, living area, and a comfortable bedroom.

The luxury kitchen is the heart of the home, complete with a stylish cooking island featuring a marble-look countertop and bar – perfect for entertaining or casual dining. It is fitted with a Bora induction cooktop with integrated extractor, and Siemens appliances, including a combi-oven, dishwasher, and fridge-freezer.

Adjacent is the technical and utility room.

The living room is cozy and bright, with deep window sills ideal for creating a relaxing seating or reading corner. The bedroom, accessible via the living room, fits a double bed and wardrobe and provides access to the modern bathroom with a walk-in shower, floating toilet, vanity unit, and connections for a washer and dryer.

The entire apartment features high-quality herringbone PVC flooring and benefits from underfloor heating and cooling for optimal comfort all year round.

C O N D I T I O N S

Sale subject to seller’s approval
Transfer date: to be agreed upon
Designated notary: buyer's choice with a maximum radius of 15 km
Non-owner-occupancy clause is applicable

V v E

The VvE is professionally managed by T&T Vastgoed and VvE Beheer. Meetings are held periodically, and a building insurance policy is in place.
The monthly service charges amount to €130,37.

T H E  J A Y

Smart, comfortable, and future-ready living.
The Jay is a modern residential tower at the entrance of Bajeskwartier, offering 135 high-quality, compact apartments. Designed for those seeking comfortable, sustainable, and efficient urban living in Amsterdam.

Remote or hybrid workers benefit from a calm and modern co-working space on the ground floor. Residents also enjoy a shared garden, secure bike parking with private spaces, and a mobility hub with shared electric cars. Organic waste is locally recycled into energy and compost via the innovative Green Tower.

T H E N E I G H B O U R H O O D

The new green heart of Amsterdam.
Bajeskwartier is a progressive, sustainable, and car-light neighborhood in Amsterdam East. Still under development, it's set to become the greenest part of the city, with no less than 68 gardens, water features, squares, and ample space for walking and cycling.

Spaklerweg Metro Station is just 50 meters away, offering direct connections to Zuidas and Amsterdam Central. You can bike to Dam Square in 10 minutes. Popular hotspots like George Marina, Ventuno Skylounge, Thuis aan de Amstel, and the lively Weesperzijde are all close by. Park Somerlust, a peaceful oasis less than 10 minutes’ walk away, is ideal for relaxing in summer. There's also a small harbor and a bike bridge to Watergraafsmeer.

S U M M A R Y

This move-in ready apartment in The Jay offers a rare combination of comfort, luxury, and sustainability in a top location in Amsterdam.
For more information or to schedule a viewing, please contact our office — we’d be happy to assist you.

E E R L I J K  B I E D E N 

Bidding for this property is done via the Eerlijk Bieden digital bidding system. After your viewing, you will receive an invitation to place your bid and access the online property file.

This information has been compiled with due care. However, we accept no liability for any incompleteness or inaccuracies. The property has been measured according to industry-wide measurement guidelines based on the NEN-2580 standard.

Features