Beschrijving

Nieuw te huur, een kwalitatief en STIJLVOL 4-KAMER APPARTEMENT gelegen AAN HET STATIONSPLEIN van Hilversum!  Het jaren ‘30 pand huisveste voorheen een welbekende bruidsmodezaak in Hilversum en het appartement op de 1e etage heeft door de aaneengesloten raampartijen over de gehele ronde hoek in de living een UNIEK PANORAMISCH UITZICHT.

KENMERKEN
• Geheel gerenoveerd ('22) luxe stadsappartement (circa 95m2)
• Energielabel B
• Gestoffeerd opgeleverd
• 3 slaapkamers
• Gelegen in Centrum Hilversum
• Super panoramisch uitzicht 
• Luxe afwerking
• Keuken met inbouw apparatuur en kookeiland
• Vloerverwarming
• Gestoffeerd (incl. gordijnen, vloer, plafondverlichting), zo te betrekken

CONDITIES
• Beschikbaar per 1 juli 2025
• Gestoffeerd opgeleverd
• Huurperiode minimaal 12 maanden, onbepaalde tijd
• Waarborgsom 2 x de kale maand huur
• Huurprijs is excl. voorschot gas/water/elektra/servicekosten ad. € 275,- 
• Geen huisdieren toegestaan
• Gunning voorbehoud eigenaar
• Vbo-screening (financieel) van toepassing
• Roken in de woning niet toegestaan

WONEN IN HILVERSUM
Het appartement ligt midden in het centrum, op de hoek van de Stationsstraat / Koninginneweg en het Stationsplein. Enkel de straat over steken en je stapt zo het Centraal Station Hilversum binnen. Daarnaast zijn winkelcentrum Hilvertshof, de gezellige restaurants aan de Groest en alle benodigde dagelijkse voorziening o.a. het marktterrein, bioscoop VUE, diverse fitnesscentra en foodhall Mout om de hoek. Andere faciliteiten als (internationale) scholen en sportmogelijkheden zijn op loopafstand. Met de trein ben je binnen 25 minuten op zowel Utrecht-Centraal als Amsterdam-Centraal. Met de auto zijn de steden Amsterdam, Utrecht & Amersfoort op nog geen half uur afstand.

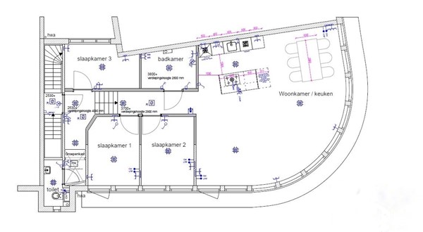
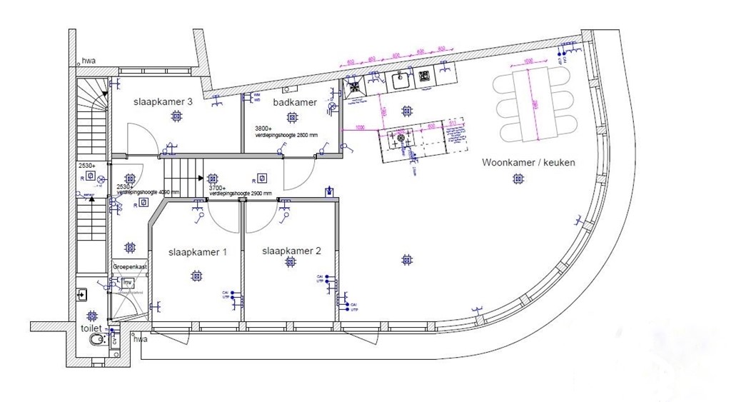
INDELING
De centrale entree van de appartementen bevindt zich aan de linkerzijde van het pand. Met de trap is de 1e verdieping te bereiken, toegang tot het ruime appartement met een woonoppervlakte van circa 95m2 en 3 slaapkamers.

De gehele woning is voorzien van een strakke visgraat vloer en glad gestucte gesausde wanden. Via de speelse hal is toegang tot de 3 slaapkamers, badkamer, separaat toilet, en ruime living. De luxe open keuken is stijlvol, met greep loze mat zwarte panelen, een composiet werkblad en matzwarte kranen. Daarnaast is de keuken voorzien van hoge kwaliteit inbouwapparatuur (Bosch), een combi oven/ magnetron, vaatwasmachine, koel-/ vriescombinatie, 5-pits inductiekookplaat, en een rvs wandschouwkap. 

Via de hal zijn de drie slaapkamers te bereiken, variërend in grootte. Verder is vanuit de hal een stijlvol uitgevoerde badkamer te vinden. Deze maakt de woning compleet; luxe inloopdouche, hoge kwaliteit RVS Cocoon douche set en kranen, een grijze vloertegel, wandtegels tot aan het plafond, spiegel, teakhouten badkamer meubel met greep loze soft-close lades en keramische wastafel met twee matzwarte kranen. In de hal is ook een interne bergruimte met aansluiting voor de wasmachine/droger.

Het appartement is geheel voorzien van vloerverwarming, dubbele beglazing en heeft een glasvezel internetaansluiting. Kortom, een zeer compleet ruim appartement met een uniek panoramisch uitzicht! 

R E A G E R E N  E N  S E L E C T I E
We verzoeken om voor deze woning online te reageren. Doe dit via de ‘reageer’-knop onderaan de pagina of via het contactformulier van Funda, VBO of Pararius. Je krijgt vanzelf bericht als een bezichtiging mogelijk is, we plannen in op basis van volgorde van reageren.

Objectieve criteria voor de toewijzing van een huurwoning bij NEWCURB Makelaars zijn:
Volgorde van reactie
Inkomstenbron
Soort arbeidsovereenkomst
Inkomensniveau (minimaal 3x de maandhuur)
Huurgeschiedenis
Gezinssamenstelling
Positieve screening

In alle gevallen adviseren wij op basis van objectieve criteria. Het is echter de eigenaar zelf die de woning gunt.
De informatie is door ons met de nodige zorgvuldigheid samengesteld. Onzerzijds wordt echter geen enkele aansprakelijkheid aanvaard voor enige onvolledigheid, onjuistheid of anderszins, dan wel de gevolgen daarvan. Alle opgegeven maten en oppervlakten zijn indicatief.

Dit appartement wordt aangeboden door NEWCURB Makelaars. Voor meer informatie of het plannen van een bezichtiging kunt u contact opnemen met ons kantoor! De informatie is door ons met de nodige zorgvuldigheid samengesteld. Onzerzijds wordt echter geen enkele aansprakelijkheid aanvaard voor enige onvolledigheid, onjuistheid of anderszins, dan wel de gevolgen daarvan. Alle opgegeven maten en oppervlakten zijn indicatief.

Kenmerken