Beschrijving
Welkom aan de Buñuellaan 42 in Almere: een opvallende en goed onderhouden hoek-/kwadrantwoning met een speelse vormgeving en verrassend ruim. De unieke architectuur zorgt voor een prettige indeling en een aangename woonbeleving, met veel licht en een fijne sfeer. De woning heeft bovendien een gunstig energielabel A. De uitbouw en het dakterras voegen daarbij extra leefruimte toe en maken het geheel compleet.
Gelegen in de rustige Filmwijk Zuid, op korte afstand van water, groen en voorzieningen, en met uitstekende verbindingen richting het Stadshart, NS-station en de uitvalswegen. Een ideale woning voor wie comfortabel wil wonen: (jonge) gezinnen, doorstromers en thuiswerkers die ruimte én een fijne woonomgeving zoeken.
K E N M E R K E N
• Hoek-/kwadrantwoning met ca. 136 m² woonoppervlakte (NEN2580)
• Gunstig Energielabel A, geldig t/m december 2030
• 5 kamers totaal, waarvan 4 slaapkamers (o.a. walk-in closet & home office mogelijk)
• Moderne badkamer met inloop(regen)douche, elektrische vloerverwarming en 2e toilet
• Royale, lichte woonkamer met speelse indeling en sfeervolle openhaard
• Uitbouw aan de achterzijde met shutters en schuifpui naar de tuin
• Open keuken met inbouwapparatuur: o.a. inductiekookplaat, vaatwasser, koel-/vriescombi en magnetron
• Begane grond met natuurstenen vloer + deels parket én vloerverwarming
• Hardhouten kozijnen met dubbelglas
• Zonnig dakterras op het zuiden met vrij uitzicht
• Tuin op het zuidwesten met ruim terras, sfeervolle verlichting en vrijstaande berging
• Openbaar parkeren voor de deur
• Verwarming en warm water door stadsverwarming
C O N D I T I E S
• Vraagprijs: € 495.000 k.k.
• Waarborgsom/bankgarantie: 10% van toepassing
• Overdracht: in overleg
• Notaris: keuze koper (mits binnen 15 km)
• Clausules: niet-zelfbewoning|NEN2580
L A Y O U T
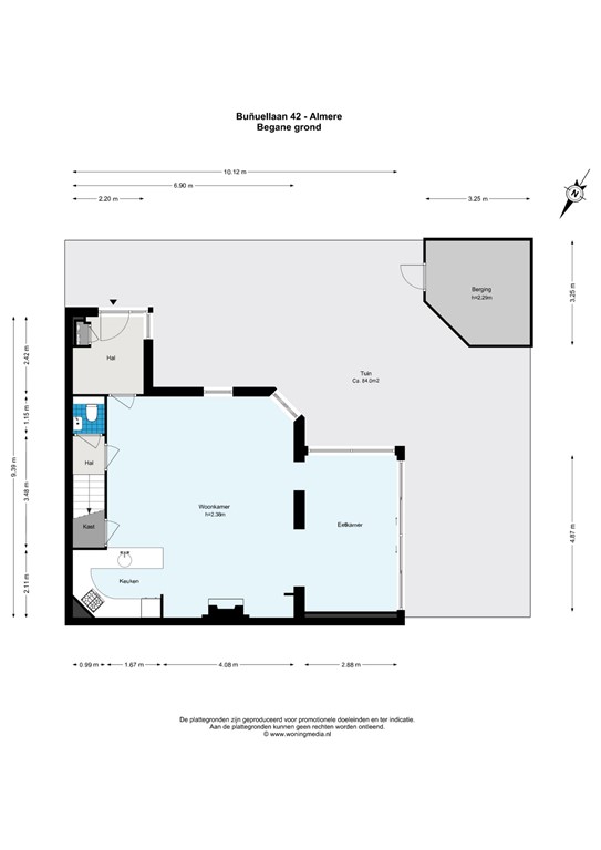
B E G A N E G R O N D
Via de entree met meterkast kom je binnen in de woonkamer. De living is ruim opgezet en heeft een kwalitatieve afwerking met een speelse indeling. Door de ronde vormen en de vele raampartijen is het een sfeervolle ruimte met veel natuurlijke lichtinval.
Aan de achterzijde is een kwalitatieve uitbouw, waardoor de woonkamer extra ruim aanvoelt en er een prachtige plek is ontstaan voor de eethoek. De uitbouw beschikt over grote raampartijen tot aan het plafond, voorzien van shutters, en een schuifpui naar de tuin.
De open keuken is goed onderhouden en sluit door de praktische indeling direct aan op de woonkamer. De keuken is uitgerust met een inductiekookplaat met RVS achterwand, afzuigkap, koel-/vriescombinatie, magnetron en vaatwasser. Daarnaast is er veel kastruimte en sfeervolle inbouwverlichting.
Op de begane grond ligt een natuurstenen vloer en deels parket, beide voorzien van vloerverwarming. Vanuit de woonkamer bereik je via een deur de trapopgang naar de eerste verdieping. Achter deze deur bevindt zich tevens het eerste toilet.
1e V E R D I E P I N G
Ruime overloop met toegang tot drie (slaap)kamers en de strak afgewerkte badkamer.
De hoofdslaapkamer ligt aan de voorzijde, is ruim van opzet en heeft volop ruimte voor een groot 2-persoonsbed, kast en veel licht door de drie raampartijen met shutters. De tweede ruime kamer is ingericht als grote dressing. De derde kamer, eveneens aan de voorzijde en van goed formaat, is ingericht als “Home Office”.
De badkamer is betegeld tot aan het plafond en voorzien van een ruime inloopdouche met HansGrohe Rainshower, een breed luxe wastafelmeubel met HansGrohe inbouwkraan, een brede Keuco inbouw spiegelkast met dimbare verlichting en een tweede zwevend toilet. De vloer is bovendien voorzien van elektrische vloerverwarming.
2e V E R D I E P I N G
Op deze verdieping bevindt zich een vierde ruime slaapkamer met inbouw garderobekast. Hier is ook de opstelling voor wasmachine en droger aanwezig.
Via openslaande deuren is er toegang tot het dakterras. Vanaf het dakterras heb je vrij uitzicht en door de ligging op het zuiden kun je hier volop genieten van de zon.
T U I N
De tuin is professioneel aangelegd, goed verzorgd en beschikt over een ruim terras aan de zijkant van de woning (doorlopend naar de voorzijde), met sfeervolle inbouwverlichting. Daarnaast is er een vrijstaande berging, ideaal voor bijvoorbeeld de fiets(en).
L O C A T I E
De woning ligt in Filmwijk Zuid: een rustige woonwijk, niet ver van het Weerwater met strandje, het Lumièrepark en het ‘rondje Weerwater’. Voorzieningen zoals een supermarkt, scholen en de bushalte (M5) liggen op korte afstand.
Overige voorzieningen bevinden zich in het Stadshart met winkels en NS-station, goed bereikbaar per fiets. Met de auto bereik je snel de uitvalswegen richting Amsterdam, Lelystad en Utrecht. Daarnaast is er vrij parkeren voor de deur.
I N T E R E S S E
Bent u enthousiast geworden over deze woning?
Voor meer informatie kunt u contact opnemen met ons kantoor — wij plannen graag een bezichtiging voor u in.
B I E D E N
Bieden op deze woning doet u via het eerlijk bieden DIGITALE BIEDFORMULIER. Na de bezichtiging ontvangt u een uitnodiging en toegang tot het online woningdossier.
Alle biedingen zijn onder voorbehoud van de volgende voorwaarden:
• De vermelde vraagprijs betreft een bieden vanaf prijs en is slechts een uitnodiging tot het uitbrengen van een bod
• De verkoper(s) behouden zich uitdrukkelijk het recht voor om de opdracht te gunnen
• Tussentijdse verkoop voorbehouden
• Het uitbrengen van een bod betekent niet automatisch dat u in onderhandeling bent
Wij hebben deze informatie met de grootst mogelijke zorgvuldigheid samengesteld. Wij aanvaarden echter geen aansprakelijkheid voor eventuele onvolledigheden, onjuistheden of andere fouten, noch voor de gevolgen daarvan. De woning is gemeten volgens branche brede meetvoorschriften, gebaseerd op de NEN-2580-norm.
Plattegronden
Buñuellaan 42 - Almere - Begane_grond - 3D _2.jpg
Buñuellaan 42 - Almere - Begane_grond - 3D _1.jpg
Buñuellaan 42 - Almere - Begane_grond - 2D (2).jpg
Buñuellaan 42 - Almere - 1e_verdieping - 3D _4.jpg
Buñuellaan 42 - Almere - 1e_verdieping - 3D _3.jpg
Buñuellaan 42 - Almere - 1e_verdieping - 2D.jpg
Buñuellaan 42 - Almere - 2e_verdieping - 3D _6.jpg
Buñuellaan 42 - Almere - 2e_verdieping - 3D _5.jpg
Buñuellaan 42 - Almere - 2e_verdieping - 2D.jpg
Buñuellaan 42 - Almere - NEN plattegrond - 2D.jpg