Beschrijving

Energiezuinig wonen op een unieke locatie in het Homeruskwartier, Almere Poort

Aan een rustige straat in het geliefde Homeruskwartier van Almere Poort ligt dit moderne en comfortabele appartement, verdeeld over twee woonlagen, met gunstig energielabel A. De indrukwekkende plafondhoogte van circa 3 meter op de woonetage, de grote raampartijen met openslaande deuren én het zonnige terras aan het park geven de woning een open en ruimtelijk gevoel.

Een bijzonder pluspunt is de directe ligging aan het gemeenschappelijke park met biologische zwemvijver — een unieke woonkwaliteit die je zelden tegenkomt. Hier woon je rustig en groen, maar met alle voorzieningen en uitvalswegen binnen handbereik.

Deze woning is bij uitstek geschikt voor stellen, kleine gezinnen of thuiswerkers die comfortabel willen wonen met veel licht, een fijne buitenruimte en een hoogwaardige woonomgeving, op korte afstand van Amsterdam.

K E N M E R K E N
• Comfortabel en royaal appartement, verdeeld over twee volwaardige woonlagen
• Woonoppervlakte ca. 94,20 m² (NEN 2580)
• Gunstig energielabel A (geldig tot mei 2027)
• Heerlijke, lichte woonkamer van ca. 40 m² met indrukwekkende plafondhoogte van circa 3 meter
• Glazen deur van vloer tot plafond tussen hal en woonkamer, wat zorgt voor extra lichtinval en een ruimtelijk effect
• Open keuken met composiet werkblad en diverse inbouwapparatuur
• Twee goed bemeten slaapkamers (ca. 12 m² en 8 m²)
• Complete, volledig betegelde badkamer met inloopdouche
• Separaat tweede toilet op de verdieping
• HR-beglazing in woonkamer en slaapkamers
• Breed zonnig terras (ca. 6 meter) met mooie overkapping voorzien van inbouwspots voor extra sfeer
• In de zomer tot in de late avonduren genieten van de zon in de tuin
• Directe ligging aan een gemeenschappelijk park van ca. 1 hectare met een biologische zwemvijver
• Royale zwemvijver van 10 x 50 meter (olympische afmetingen), professioneel onderhouden met natuurlijke filtering door ecologen én een aanvullend technisch filtersysteem
• Circa 1,5 jaar geleden gerealiseerd maatwerk tv-meubel, volledig ingebouwd
• Actieve VvE met optionele activiteiten zoals klaverjasavonden, een jaarlijkse tuinbarbecue en een wijnproeverij (vrijblijvend, zonder overlast)
• Parkeerplaats op eigen terrein
• Servicekosten € 135,22 per maand (incl. onderhoud van park en biologische zwemvijver)
• Gelegen in het gewilde Ithaka-complex in het Homeruskwartier
• Verwarming via stadsverwarming, warm water via centrale voorziening
• Bouwjaar 2011

L A Y O U T

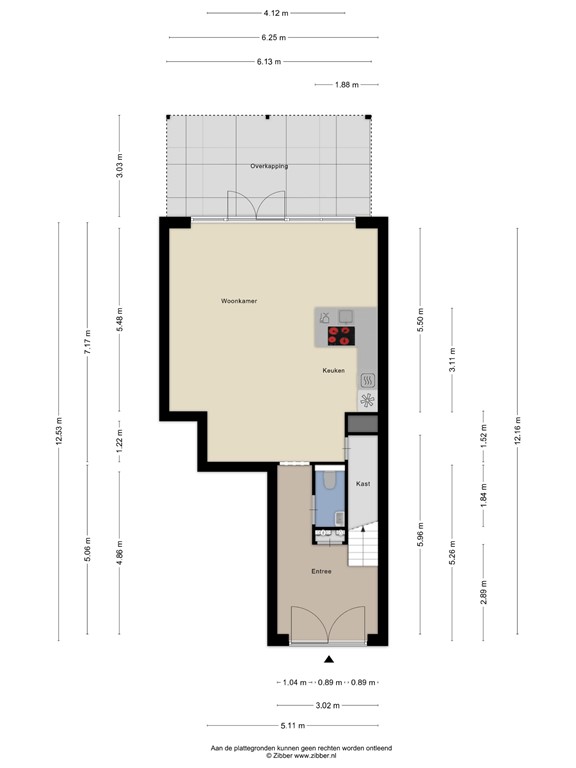
Begane grond

Via de entree bereik je de hal met meterkast, toiletruimte en trapopgang naar de verdieping.
De woonruimte bevindt zich aan de achterzijde en heeft een oppervlakte van circa 40 m² (conform plattegrond). Dankzij de plafondhoogte van circa 3 meter en de brede pui met openslaande deuren voelt deze ruimte extra ruim en licht aan. Binnen en buiten lopen hier op natuurlijke wijze in elkaar over.
De open keuken bevindt zich aan de achterzijde van de woning en is uitgevoerd in een L-opstelling met composiet werkblad en diverse inbouwapparatuur.

Daarnaast is er een praktische trapkast aanwezig voor extra bergruimte.
Vanuit de woonkamer stap je direct het terras op, dat circa 6 meter breed is en grenst aan het groene binnenterrein
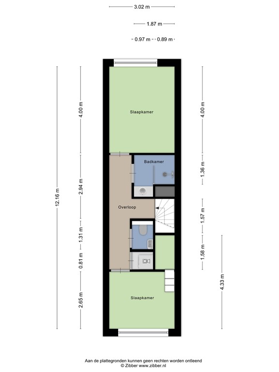
Boven verdieping

Op de eerste verdieping bevinden zich twee comfortabele slaapkamers, verdeeld over de volledige lengte van de woning. De indeling is rustig en overzichtelijk, met aan zowel de voor- als achterzijde een prettige slaapkamer met natuurlijke lichtinval.
De slaapkamer aan de achterzijde biedt uitzicht op het groene binnenterrein en het park, wat zorgt voor een ontspannen en rustige sfeer. De slaapkamer aan de voorzijde is ideaal als slaap-, werk- of logeerkamer.

Centraal op de verdieping ligt de moderne, volledig betegelde badkamer, voorzien van een inloopdouche en wastafel. Daarnaast is er een separate toiletruimte, wat extra comfort biedt. Ook is er een aparte ruimte voor de wasmachine en droger, praktisch uit het zicht maar goed bereikbaar.
Deze verdieping is efficiënt ingedeeld en voelt aangenaam aan door de goede verhoudingen en rustige ligging — een fijne plek om je terug te trekken aan het einde van de dag.

B U I T E N R U I M T E
De woning beschikt over een zonnig terras van circa 6 meter breed, met overkapping, direct grenzend aan het groene binnenterrein. Dankzij de gunstige ligging is dit een fijne plek om vanaf de middag tot in de avond van de zon te genieten.
Het terras vormt een natuurlijk verlengstuk van de woonkamer en biedt voldoende ruimte voor een zit- en eethoek. Vanuit hier loop je zo het gezamenlijke park in, met als bijzonder pluspunt de biologische zwemvijver — een unieke woonkwaliteit die je elke dag ervaart.
De combinatie van privacy op het eigen terras en het open, groene karakter van het park maakt deze buitenruimte bijzonder aantrekkelijk.

L O C A T I E

Gelegen in het populaire Homeruskwartier in Almere Poort, bevindt deze woning zich in een kindvriendelijke en rustige buurt. 
Op loopafstand vindt je diverse voorzieningen zoals scholen, supermarkten en sportfaciliteiten. Bovendien zijn de uitvalswegen naar de A6 en het openbaar vervoer gemakkelijk bereikbaar, waardoor u binnen korte tijd in het centrum van Almere of Amsterdam bent. 

De wijk is uitstekend bereikbaar via de A6 en het openbaar vervoer, met het treinstation Almere Poort op loopafstand. Daarnaast vindt u in de nabije omgeving diverse voorzieningen, zoals supermarkten, winkels, horeca, scholen en een gezondheidscentrum. 

Natuur en recreatie Voor natuurliefhebbers biedt het Homeruskwartier directe toegang tot het Cascadepark en het Homeruspark, waar u kunt genieten van groene ruimtes, wandel- en fietspaden en diverse recreatiemogelijkheden. Daarnaast ligt vlakbij het prachtige Almeerderstrand. Het is een geliefde plek voor men die wil genieten van zon, water en ontspanning. 

Het strand staat bekend om zijn brede zandstroken en ondiepe water, waardoor het ideaal is voor gezinnen met kinderen. Naast zwemmen en zonnebaden biedt Almeerderstrand ook mogelijkheden voor watersporten zoals kitesurfen en windsurfen. In de omgeving zijn er diverse horecagelegenheden, waaronder strandtenten waar je kunt genieten van een hapje en een drankje met uitzicht op het water. 
Regelmatig worden er evenementen en festivals georganiseerd, waar muziek, kunst en cultuur samenkomen.

V E R E N I G I N G   V A N   E I G E N A A R S (VvE)

Ithaka Dubbeldekkers 
Beheervereniging Ithaka

Beide VvE's worden professioneel beheerd door Fidata VvE beheer
Er wordt periodiek vergaderd, er is een MJOP en opstalverzekering aanwezig.

Ithaka Dubbeldekkers
• KvK-nummer: 51243067
• Aandeel A-157: 40/431e
• Servicekosten voor de woning + parkeerplaats € 98,22 p.m.

Beheervereniging Ithaka
• KVK-nummer: 64686434
• Aandeel A-018: 1/135e
• Servicekosten mandeligheid omliggende grond / zwemvijver € 37,00 p.m.

C O N D I T I E S 

• Overdracht: in overleg 
• Notaris: keuze koper (mits binnen 15 km) 
• Clausules: ouderdom | NEN2580 

I N T E R E S S E 

Bent u enthousiast geworden over deze woning? Voor meer informatie kunt u contact opnemen met ons kantoor — wij plannen graag een bezichtiging voor u in. 

B I E D E N 

Bieden op deze woning doet u via het DITALE BIEDFORMULIER. Na de bezichtiging ontvangt u een uitnodiging en toegang tot het online woningdossier. 
Alle biedingen zijn onder voorbehoud van de volgende voorwaarden: 
• De vermelde vraagprijs is slechts een uitnodiging tot het uitbrengen van een bod 
• De verkoper(s) behouden zich uitdrukkelijk het recht voor om de opdracht te gunnen 
• Tussentijdse verkoop voorbehouden 
• Het uitbrengen van een bod betekent niet automatisch dat u in onderhandeling bent Wij hebben deze informatie met de grootst mogelijke zorgvuldigheid samengesteld. Wij aanvaarden echter geen aansprakelijkheid voor eventuele onvolledigheden, onjuistheden of andere fouten, noch voor de gevolgen daarvan. De woning is gemeten volgens branche brede meetvoorschriften, gebaseerd op de NEN-2580-norm.

Kenmerken