Beschrijving
Volledig uitgebouwde en goed onderhouden gezinswoning met 4 slaapkamers, 2 badkamers, Energielabel C en zonnige voor- en achtertuin, gelegen in het geliefde Elsrijk in Amstelveen.
Achter de karakteristieke gevel van deze jaren ’50 woning gaat een verrassend ruime en comfortabele gezinswoning schuil. In 2018 is het huis verbouwd en uitgebreid met een uitbouw op de begane grond en een dakopbouw op de tweede verdieping. Hierdoor is een fijne, goed ingedeelde woning ontstaan die helemaal klaar is voor de volgende bewoners.
De woning is gelegen in een rustige straat op loopafstand van het Stadshart Amstelveen, met een breed aanbod aan winkels, horeca, theater en cultuur. Scholen, kinderopvang en openbaar vervoer (tram en bus) bevinden zich in de directe omgeving. Ook de bereikbaarheid met de auto is uitstekend via de A9, A10 en A4.
R O Y A L E L E E F R U I M T E
Bij binnenkomst valt direct op hoe licht en ruim de woning aanvoelt. De woonkamer is aan de achterzijde uitgebouwd, waardoor een royale leefruimte is ontstaan waar wonen en leven centraal staan. De aanwezige vloerverwarming geeft extra comfort. Grote ramen en openslaande deuren zorgen voor een fijne verbinding met de tuin en een prettige lichtinval gedurende de dag. De indeling maakt het een huis waar je je snel thuis voelt: open, praktisch en met voldoende ruimte voor zowel ontspanning als gezellig samenzijn.
O P E N K E U K E N M E T Z I C H T O P B U I T E N
Aan de voorzijde bevindt zich de open keuken, modern uitgevoerd en praktisch ingericht. De keuken is voorzien van diverse inbouwapparatuur, waaronder een Siemens kookplaat, afzuigkap en oven, aangevuld met een vaatwasser en koel-/vriescombinatie.
De openslaande deuren naar de voortuin zorgen voor extra licht en geven de ruimte een open karakter. Hier kook je met zicht naar buiten, terwijl de woning aan beide zijden in contact staat met de tuin.
T U I N E N - Z O N N I G E N O N D E R H O U D S V R I E N D E L I J K
Deze woning beschikt over zowel een voor- als achtertuin. Dankzij de open verbinding tussen binnen en buiten vormen beide tuinen een prettig verlengstuk van de leefruimte, waardoor de woning ruim en comfortabel aanvoelt.
De achtertuin, gelegen op het zuidoosten, biedt zon in de ochtend en middag en is verzorgd aangelegd met een onderhoudsvriendelijk karakter. Het terras leent zich uitstekend voor het plaatsen van een lounge- of eethoek. Aan de achterzijde bevindt zich een vrijstaande stenen berging, ideaal voor fietsen en extra opslag. Daarnaast is de tuin voorzien van een achterom, wat het gebruik extra praktisch maakt.
I D E A L E G E Z I N S I N D E L I N G
Op de eerste verdieping bevinden zich drie slaapkamers en een moderne badkamer.
De slaapkamers zijn verdeeld over de voor- en achterzijde en lenen zich uitstekend als kinderkamer, logeerkamer, hobby en/of werkkamer.
De badkamer is verzorgd uitgevoerd en voorzien van een inloopdouche met glazen douchewand (regendouche en handdouche), wastafelmeubel en zwevend toilet.
R O Y A L E M A S T E R M E T E I G E N V O O R Z I E N I N G E N
De tweede verdieping is gerealiseerd middels een dakopbouw en vormt een volwaardige en comfortabele woonlaag.
Hier bevindt zich een royale master bedroom, gekenmerkt door hoge plafonds, een sfeervol lichtplan met inbouwspots en veel lichtinval door de ramen aan beide zijden. De kamer biedt daarnaast volop mogelijkheden voor het realiseren van een inloopkast of garderobewand.
Aansluitend bevindt zich een tweede badkamer, voorzien van een ligbad met douche, wastafelmeubel en derde toilet.
Daarnaast is er een extra kamer aanwezig, ideaal als bergruimte of werkplek.
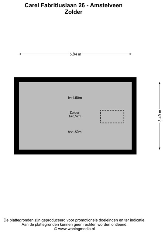
Z O L D E R / B E R G R U I M T E
Via een vlizotrap (uitklapbare trap) is de bergzolder bereikbaar. Deze ruimte is ideaal voor het opbergen van seizoensspullen en overige opslag en vormt een praktische aanvulling op de woning.
K E N M E R K E N
• Woonoppervlakte ca. 144 m², 4 slaapkamers + extra werk-/bergruimte, 2 moderne badkamers, 3 toiletten
• Volledig verbouwd en uitgebouwd in 2018
• Uitbouw begane grond aan de achterzijde
• Dakopbouw tweede verdieping (volwaardige woonlaag)
• Open keuken voorzien van inbouwapparatuur
• Voor- en achtertuin (zon op verschillende momenten van de dag)
• Achtertuin voorzien van berging en achterom
• Volledig voorzien van dubbele beglazing
• Vloerverwarming op de begane grond
• Verwarming en warm water middels cv-ketel (Intergas, 2015, eigendom)
• Energielabel C (geldig tot 4 maart 2036)
• Parkeren via vergunning (ca. € 80,- per jaar)
• Bouwjaar 1955
• Gelegen in de geliefde en kindvriendelijke wijk Elsrijk
• Scholen en kinderopvang in de directe omgeving
• Rustige ligging nabij het Stadshart Amstelveen
• Goede bereikbaarheid met auto en openbaar vervoer
C O N D I T I E S
• Waarborgsom/bankgarantie: 10% van toepassing
• Overdracht: in overleg
• Notaris: keuze koper (mits binnen 15 km)
• Clausules: NEN2580|Ouderdom|Asbest|Niet-zelfbewoning
I N T E R E S S E
Bent u enthousiast geworden over deze woning?
Voor meer informatie kunt u contact opnemen met ons kantoor — wij plannen graag een bezichtiging voor u in.
B I E D E N
Bieden op deze woning doet u via het DIGITALE BIEDFORMULIER. Na de bezichtiging ontvangt u een uitnodiging en toegang tot het online woningdossier.
Alle biedingen zijn onder voorbehoud van de volgende voorwaarden:
• De vermelde vraagprijs is slechts een uitnodiging tot het uitbrengen van een bod
• De verkoper(s) behouden zich uitdrukkelijk het recht voor om de opdracht te gunnen
• Tussentijdse verkoop voorbehouden
• Het uitbrengen van een bod betekent niet automatisch dat u in onderhandeling bent
Wij hebben deze informatie met de grootst mogelijke zorgvuldigheid samengesteld. Wij aanvaarden echter geen aansprakelijkheid voor eventuele onvolledigheden, onjuistheden of andere fouten, noch voor de gevolgen daarvan. De woning is gemeten volgens branche brede meetvoorschriften, gebaseerd op de NEN-2580-norm.
Plattegronden
Carel Fabritiuslaan 26 - Amstelveen - Begane_grond - 3D _1.jpg
Carel Fabritiuslaan 26 - Amstelveen - Begane_grond - 3D _2.jpg
Carel Fabritiuslaan 26 - Amstelveen - Begane_grond - 2D.jpg
Carel Fabritiuslaan 26 - Amstelveen - 1e_verdieping - 3D _3.jpg
Carel Fabritiuslaan 26 - Amstelveen - 1e_verdieping - 3D _4.jpg
Carel Fabritiuslaan 26 - Amstelveen - 1e_verdieping - 2D.jpg
Carel Fabritiuslaan 26 - Amstelveen - 2e_verdieping - 3D _5.jpg
Carel Fabritiuslaan 26 - Amstelveen - 2e_verdieping - 3D _6.jpg
Carel Fabritiuslaan 26 - Amstelveen - 2e_verdieping - 2D.jpg
Carel Fabritiuslaan 26 - Amstelveen - Zolder - 3D _7.jpg
Carel Fabritiuslaan 26 - Amstelveen - Zolder - 2D.jpg