Beschrijving
Wonen op een toplocatie in de Rivierenbuurt Amsterdam-Zuid, met alle mogelijkheden om uw droomwoning te realiseren.
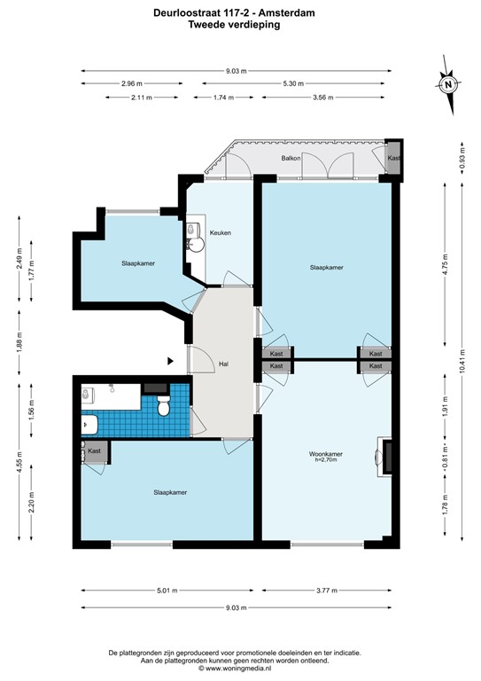
Dit charmante en lichte appartement van ca. 83 m², gelegen op de tweede verdieping, beschikt over een prettige indeling met drie slaapkamers, een ruim balkon aan de achterzijde en biedt volop mogelijkheden voor modernisering. Daarnaast beschikt de woning over een eigen berging op zolderniveau — een waardevolle toevoeging die in deze buurt zelden voorkomt.
Ideaal voor starters of doorstromers die willen wonen op een centrale en gewilde locatie, met alle voorzieningen binnen handbereik.
K E N M E R K E N
• Woonoppervlakte ca. 83,10 m² (NEN 2580)
• Gelegen op de tweede verdieping
• 3 slaapkamers, 1 badkamer met toilet
• Ruim balkon op het zuiden
• Externe bergruimte op de vierde verdieping van ca. 15 m²
• Karakteristieke details, waaronder een schouw
• Veel lichtinval door grote raampartijen
• Praktische en efficiënte indeling
• Woning met veel potentie, naar eigen smaak te moderniseren
• Eeuwigdurend afgekochte erfpacht – géén canon meer verschuldigd
• Energielabel F, geldig tot februari 2036
• Verwarming via cv-ketel, warmwatervoorziening via elektrische boiler
• Gelegen in een rustige straat op toplocatie in de Rivierenbuurt
C O N D I T I E S
• Vraagprijs € 645.000,00 k.k.
• Overdracht: in overleg
• Notaris: keuze koper, binnen een straal van 15 km
• Clausules: niet-zelfbewoning, bouwjaar/ouderdomclausule, As is, Where is, NEN2580, en asbestclausule zijn van toepassing
L A Y O U T
Entree & Hal
Via het gemeenschappelijke trappenhuis bereik je de woning op de tweede verdieping. Entree in de ruime hal, centraal gelegen in het appartement, die toegang biedt tot alle vertrekken.
Woonkamer
Aan de voorzijde bevindt zich de lichte woonkamer, gekenmerkt door de grote raampartij en fraaie lichtinval. De ruimte beschikt over een originele schouw en biedt volop mogelijkheden voor het creëren van een comfortabel woon- en eetgedeelte.
Keuken
De keuken bevindt zich aan de achterzijde en biedt toegang tot het balkon. Deze is eenvoudig uitgevoerd en beschikt over een aansluiting voor een gasfornuis.
Slaapkamers
Aan de achterzijde ligt de ruime master bedroom met openslaande deuren naar het balkon. Vanuit hier is er een prettig uitzicht over de binnentuinen. Het balkon is rustig gelegen en vormt een fijne plek om buiten te zitten.
Daarnaast bevindt zich aan de achterzijde een tweede (slaap)kamer van goed formaat, ideaal als werk-, kinder- of logeerkamer. Aan de voorzijde ligt de derde slaapkamer, waar zich tevens de aansluiting voor de wasmachine bevindt.
De woning beschikt hiermee over drie slaapkamers, wat zorgt voor een veelzijdige indeling die geschikt is voor verschillende woonwensen.
Badkamer
De badkamer is centraal gelegen en voorzien van een ligbad met douche, wastafel en toilet.
Externe bergruimte
Tot slot beschikt de woning over een ruime externe berging op de vierde verdieping, ideaal voor extra opslag.
L O C A T I E
Gelegen op een toplocatie in het mooiste deel van de geliefde Rivierenbuurt, tussen de Haringvlietstraat en de Scheldestraat. Alle voorzieningen bevinden zich hier letterlijk binnen handbereik. Zo zijn er diverse winkels, horeca en speciaalzaken te vinden op onder andere de Scheldestraat en Maasstraat, terwijl ook de Beethovenstraat op loopafstand ligt.
Voor ontspanning ligt het prachtige Beatrixpark om de hoek en ben je bovendien in no-time in De Pijp. De bereikbaarheid is uitstekend: het centrum is binnen circa 10 minuten fietsen te bereiken, station RAI en station Zuid liggen op ongeveer 5 minuten fietsen en de Noord/Zuidlijn (halte Europaplein) bevindt zich op slechts enkele minuten lopen. Daarnaast zijn de uitvalswegen en Schiphol snel en eenvoudig bereikbaar.
Kortom, een rustige en centrale ligging met alle denkbare voorzieningen binnen handbereik.
E R F P A C H T
• De woning staat op grond van de gemeente Amsterdam (erfpacht).
• De erfpacht van Deurloostraat 117 is per 4 juni 2024 eeuwigdurend en volledig afgekocht.
V v E
Vereniging van Eigenaars Deurloostraat 117-119, gevestigd te Amsterdam
De VvE wordt professioneel beheerd door Parel VvE Beheer B.V.
Het complex maakt onderdeel uit van een grotere structuur, waarbij een overkoepelende stichting verantwoordelijk is voor het beheer en onderhoud van het dak/de schil. Dit zorgt voor een centrale en professionele aanpak van het groot onderhoud.
Er wordt periodiek vergaderd en er is een opstalverzekering aanwezig. Tevens is er een reservefonds en een meerjarenonderhoudsplan (MJOP).
Appartementsrecht:
• A-3 – Deurloostraat 117-2 (woning)
• Breukdeel in VvE: 104 / 394
• Breukdeel VvE Deurloostraat 117-119 in Stichting Deurloostraat = 92 / 1000
Bijdrage VvE:
• Servicekosten woning: € 237,56 per maand
• Voorschot stookkosten: € 100,00 per maand
• Totale bijdrage: € 337,56 per maand
I N T E R E S S E
Bent u enthousiast geworden over deze woning?
Voor meer informatie kunt u contact opnemen met ons kantoor — wij plannen graag een bezichtiging voor u in.
B I E D E N
Bieden op deze woning doet u via het eerlijk bieden DIGITALE BIEDFORMULIER. Na de bezichtiging ontvangt u een uitnodiging en toegang tot het online woningdossier.
Alle biedingen zijn onder voorbehoud van de volgende voorwaarden:
• De vermelde vraagprijs is slechts een uitnodiging tot het uitbrengen van een bod
• De verkoper(s) behouden zich uitdrukkelijk het recht voor om de opdracht te gunnen
• Tussentijdse verkoop voorbehouden
• Het uitbrengen van een bod betekent niet automatisch dat u in onderhandeling bent
Wij hebben deze informatie met de grootst mogelijke zorgvuldigheid samengesteld. Wij aanvaarden echter geen aansprakelijkheid voor eventuele onvolledigheden, onjuistheden of andere fouten, noch voor de gevolgen daarvan. De woning is gemeten volgens branche brede meetvoorschriften, gebaseerd op de NEN-2580-norm.
Plattegronden
Deurloostraat 117-2 - Amsterdam - 2e_verdieping - 3D _1.jpg
Deurloostraat 117-2 - Amsterdam - 2e_verdieping - 3D _2.jpg
Deurloostraat 117-2 - Amsterdam - 2e_verdieping - 2D.jpg
Deurloostraat 117-2 - Amsterdam - Berging - 3D _3.jpg
Deurloostraat 117-2 - Amsterdam - Berging - 3D _4.jpg
Deurloostraat 117-2 - Amsterdam - Berging - 2D.jpg