Beschrijving
Licht en goed ingedeeld 2-kamerappartement met royale tuin in Diemen – Tarwekamp 6
Ben je op zoek naar een licht en comfortabel appartement met een fijne tuin, nieuw gerenoveerde badkamer én een praktische indeling? Dan is dit prettige 2-kamerappartement van ca. 69 m² op de begane grond precies wat je zoekt!
De woning beschikt over een ruime en lichte woonkamer met direct zicht op de achtertuin, een slaapkamer met toegang tot buiten en een nieuw gerenoveerde badkamer. De royale tuin op het noordoosten vormt een verlengstuk van de leefruimte en biedt een heerlijke plek om te ontspannen. Ideaal voor starters, singles of stellen die comfortabel willen wonen met alle voorzieningen binnen handbereik, in een rustige en prettige woonomgeving in Diemen.
K E N M E R K E N
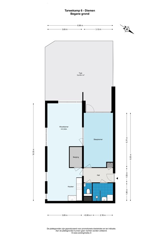
• Appartement van ca. 69 m² groot (NEN-gemeten)
• Energielabel B, geldig tot april 2035
• Gelegen op de begane grond
• Nieuw gerenoveerde badkamer
• Ruime achtertuin op het zuidwesten; geniet hier van de middagzon
• Eén ruime slaapkamer met directe toegang tot de tuin
• Lichte woonkamer
• Open keuken
• Externe berging van ca. 5,3 m²
• Lift aanwezig
• Professioneel VvE beheer
• Gelegen in een rustige woonomgeving in Diemen
L A Y O U T
Hal
Entree in de centrale hal met toegang tot vrijwel alle vertrekken van de woning. Hier bevinden zich tevens de meterkast en ruimte voor een garderobe.
Woonkamer
De woonkamer is ruim opgezet en geniet van veel natuurlijk licht dankzij de grote raampartijen rondom. Vanuit de woonkamer heb je een prettig uitzicht op de achtertuin.
Keuken
De open keuken is gesitueerd aan de voorzijde van de woning en staat in verbinding met de woonkamer. De keuken is praktisch ingericht.
Slaapkamer
De slaapkamer is van goed formaat en gelegen aan de achterzijde van de woning. Vanuit deze kamer is er directe toegang tot de achtertuin, wat zorgt voor extra comfort en een fijne verbinding met buiten.
Badkamer
De badkamer is recent gerenoveerd en modern afgewerkt. De ruimte is voorzien van een douche, toilet en wastafel en biedt een frisse en eigentijdse uitstraling.
Tuin
De woning beschikt over een ruime achtertuin gelegen op het zuidwesten, waar je kunt genieten van de middagzon.
Berging
Externe berging van circa 5,3 m², ideaal voor fietsen en extra opslag.
C O N D I T I E S
• Vraagprijs EU 350.000 k.k.
• Waarborgsom/bankgarantie: 10% van toepassing
• Overdracht: in overleg
• Notaris: Keuze koper, maximaal binnen een straal van 15 km
• Clausules: Niet-zelfbewoning, bouwjaar/ouderdomclausule, As is, Where is, NEN2580, en Asbestclausule zijn van toepassing
V E R E N I G I N G V A N E I G E N A A R S (VvE)
De VvE wordt professioneel beheerd door Fintec
Er wordt periodiek vergaderd, er is een MJOP en opstalverzekering aanwezig.
• KvK-nummer: 34379755
• Aandeel huisnummer 6: 73/9661
• Servicekosten voor de woning bedragen € 373,93 p.m.
• Servicekosten voor de berging bedragen € 35,86 p.m.
• Voorschot stookkosten p.m. € 125,00
L O C A T I E
Het appartement bevindt zich in de rustige en groene wijk "Akkerland" in Diemen-Zuid, vlakbij Amsterdam. Parkeren is er geen probleem dankzij de ruime parkeergelegenheid. In de directe omgeving vind je alles wat je nodig hebt. Basisscholen en de Hogeschool Inholland liggen op korte afstand. Voor je dagelijkse boodschappen kun je terecht bij winkelcentrum Kruidenhof, waar onder andere een Jumbo gevestigd is. Voor een uitgebreider winkelaanbod ligt het overdekte winkelcentrum "Diemerplein" vlakbij. Hier vind je onder andere een AH-XL, HEMA, Action, Kruidvat, een bakker, visboer en slager.
De bereikbaarheid van het appartement is uitstekend. Met de nabijgelegen uitvalswegen (A10, A1, A2 en A9), het metro- en treinstation Diemen-Zuid en bushaltes voor de lijnen 44 en 287 ben je snel op weg. Bovendien bereik je het centrum van Amsterdam binnen 20 minuten met de fiets. Ook het Arena-gebied, met de Johan Cruijff Arena, winkels en kantoren, ligt op fietsafstand.
Alle aanbiedingen worden gedaan onder de volgende voorwaarden:
• De genoemde vraagprijs is slechts een uitnodiging tot het doen van een voorstel.
• Verkoper(s) behouden zich uitdrukkelijk het recht van gunning voor.
• Tussentijdse verkoop voorbehouden.
• Het uitbrengen van een bod betekent niet automatisch dat u in onderhandeling bent.
Dit appartement wordt aangeboden door NEWCURB Makelaars. Neem snel contact met ons op en wie weet ben jij binnenkort de gelukkige bewoner van deze woning!
B I E D E N
Het bieden op deze woning verloopt via het digitale biedformulier. Hiervoor volgt na bezichtiging een uitnodiging en is tevens toegang tot het online woning dossier.
De informatie is door ons met de nodige zorg samengesteld. Voor enige onvolledigheid, onjuistheid of anderszins, dan wel de gevolgen daarvan, wordt onzerzijds echter geen aansprakelijkheid aanvaard. De woning is ingemeten volgens de branche brede meetinstructie, gebaseerd op de NEN-2580-norm.
Plattegronden
Tarwekamp 6 - Diemen - Begane_grond - 3D _2.jpg
Tarwekamp 6 - Diemen - Begane_grond - 3D _1.jpg
Tarwekamp 6 - Diemen - Begane_grond - 2D.jpg
Tarwekamp 6 - Diemen - Berging - 3D _4.jpg
Tarwekamp 6 - Diemen - Berging - 2D.jpg