Beschrijving
Laat je woonideeën werkelijkheid worden in dit ruime appartement van 104 m² gelegen aan de Roggekamp in Diemen, verdeeld over twee verdiepingen met drie slaapkamers en een eigen berging en voorzien van een gunstig energielabel C. Gelegen op een centrale en goed bereikbare locatie in Diemen, met winkels, openbaar vervoer en uitvalswegen binnen handbereik, maar toch in een rustige en groene woonomgeving.
Laat je inspireren: met de virtuele artist impressions brengen we de mogelijkheden van deze woning alvast tot leven en geven we een mooie indruk van de sfeer en het potentieel
KENMERKEN
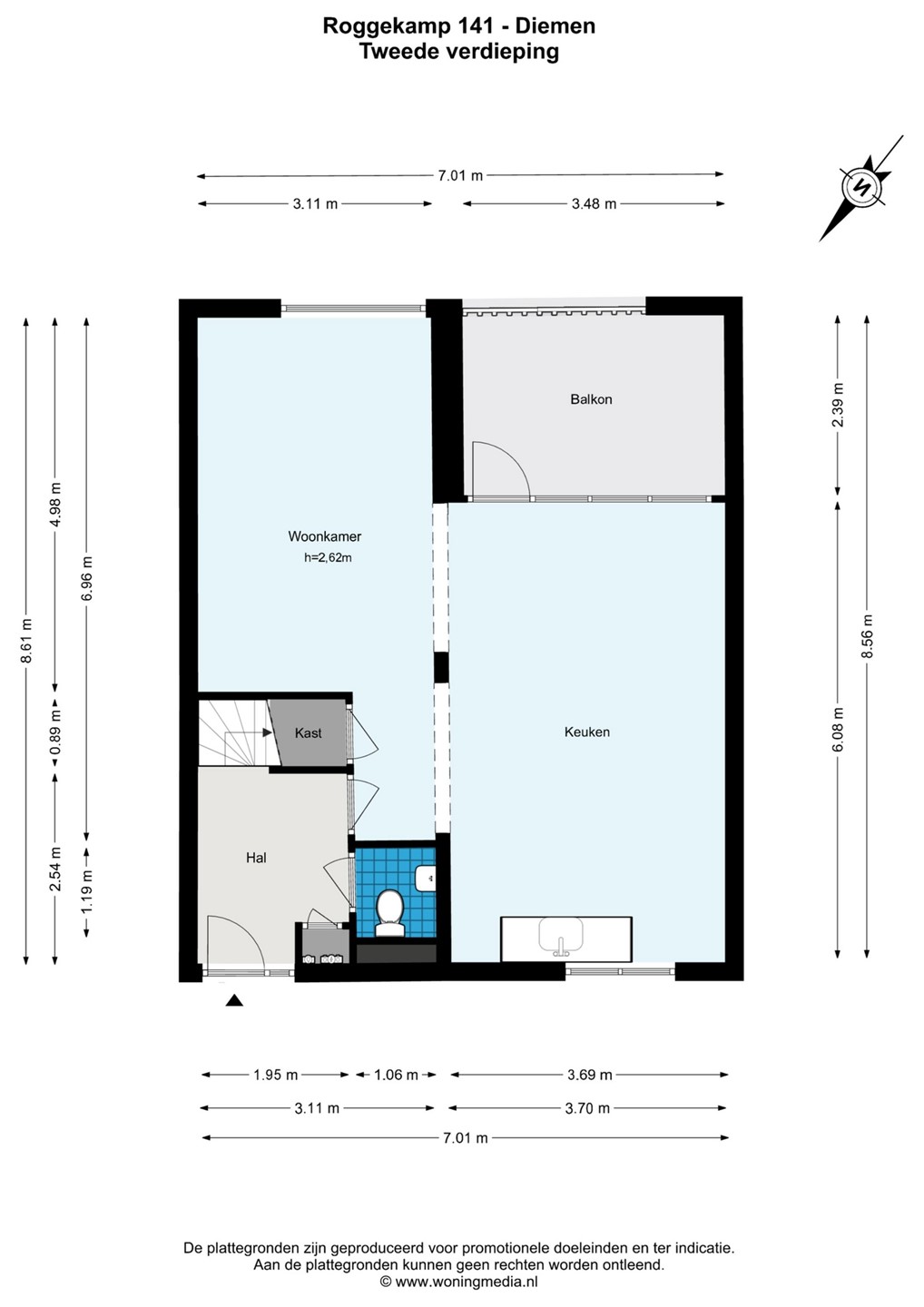
• Woonoppervlakte: 104 m² NEN2850
• Bouwjaar: 1978
• Energielabel: C
• Nieuwe kunststof kozijnen met HR+++ (triple) glas
• Betreft een opknapper
• Drie ruime slaapkamers
• Grote woonkamer met openkeuken
• Goed formaat balkon, aangrenzend aan de woonkamer
• Privé berging in de onderbouw
• Eigen grond, geen erfpacht
• Professioneel VvE beheer Fintec
C O N D I T I E S
Aanvaarding: in overleg
Notaris: keuze koper, max. 15km. afstand
Clausules: Niet-zelfbewoning, bouwjaar/ouderdomclausule, As is, Where is, NEN2580, en Asbestclausule zijn van toepassing
LOCATIE
Wonen aan de Roggekamp betekent profiteren van een gunstige ligging met zowel Diemen als Amsterdam binnen handbereik. Binnen tien minuten lopen bereikt u het winkelcentrum Kruidenhof, waar meerdere supermarkten en winkels te vinden zijn. Voor wie de bus neemt: diverse haltes liggen om de hoek en zorgen voor een snelle verbinding met onder meer Amsterdam Amstel en Bijlmer ArenA. Het treinstation en metrostation Diemen-Zuid bevindt zich eveneens dichtbij; in een kwartiertje wandelen staat u al op het perron.
Met de auto bent u in enkele minuten op de ringweg A10 en ook de A1, A2 en A9 zijn eenvoudig en vlot bereikbaar. Ondanks deze uitstekende bereikbaarheid woont u aan de Roggekamp in een rustige omgeving, gelegen aan een autoluw woonerf. Het vele groen draagt bij aan de prettige sfeer: achter het complex ligt een parkje.
V E R E N I G I N G V A N E I G E N A A R S (VvE)
De VvE wordt professioneel beheerd door Fintec
Er wordt periodiek vergaderd, er is een MJOP en opstalverzekering aanwezig.
• KvK-nummer: 34388843
• Aandeel huisnummer 141: 117/5777
• Servicekosten voor de woning bedragen EUR 396,14 p.m.
• Servicekosten voor de berging bedragen EUR 23,70 p.m.
• Voorschot stookkosten p.m. EUR 250,00 p.m. (gebaseerd op persoonlijk gebruik)
SAMENVATTING
Een ruim appartement met energielabel C, verdeeld over twee verdiepingen, met maar liefst 3 slaapkamers, balkon en eigen berging op een goede locatie in Diemen.
Alle aanbiedingen worden gedaan onder de volgende voorwaarden:
• De genoemde vraagprijs is slechts een uitnodiging tot het doen van een voorstel.
• Verkoper(s) behouden zich uitdrukkelijk het recht van gunning voor.
• Tussentijdse verkoop voorbehouden.
• Het uitbrengen van een bod betekent niet automatisch dat u in onderhandeling bent.
Dit appartement wordt aangeboden door NEWCURB Makelaars. Neem snel contact met ons op en wie weet ben jij binnenkort de gelukkige bewoner van deze woning!
B I E D P R O C E S
Het bieden op deze woning verloopt via het digitale biedlogboek Eerlijk Bieden. Hiervoor volgt na bezichtiging een uitnodiging en is tevens toegang tot het online woning dossier.
De informatie is door ons met de nodige zorg samengesteld. Voor enige onvolledigheid, onjuistheid of anderszins, dan wel de gevolgen daarvan, wordt onzerzijds echter geen aansprakelijkheid aanvaard. De woning is ingemeten volgens de branche brede meetinstructie, gebaseerd op de NEN-2580-norm.