Beschrijving
Per direct beschikbaar voor de verhuur! Een ruim appartement van ca 101m2 met 2 slaapkamers, een badkamer en een balkon. Direct aan de overzijde tref je de Zuid-as. Het appartement is te bereiken per lift, beschikt over een berging op de begane grond en heeft een gunstig energielabel B.
- Let op: o.a. Vloer en raambekleding ter overname
B E Z I C H T I G I N G A A N V R A G E N
1. Ga naar onze eigen website en zoek naar de specifieke woning.
2. Rechtsonder vindt u een groene knop: "Plan Afspraak".
3. Vul vervolgens de korte vragenlijst in, zodat we kunnen kijken of uw profiel aansluit bij de woning.
4. Op basis daarvan ontvangt u wel of geen uitnodiging om een bezichtiging te plannen.
KENMERKEN
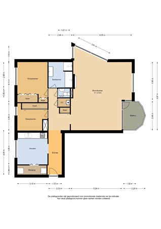
- woonoppervlakte ca. 101m²
- Appartement met balkon
- Lift aanwezig
- Berging (ca. 4 m²) op de begane grond, voorzien van elektra
- Gunstig energielabel B
- O.a. vloer en wandbekleding ter overname beschikbaar
CONDITIES
- Beschikbaar per direct
- Huurperiode minimaal 12 maanden, onbepaalde tijd
- Waarborgsom 2x de maand huur
- Servicekosten EUR 60,- p.m.
- Huurprijs EUR 1.950 excl. g/w/e/internet/tv/gemeentelijke lasten/servicekosten
LOCATIE
Het appartement is gelegen om de hoek van het groeiende businessdistrict de Zuid-As. Op loopafstand van zowel het Beatrixpark en het Amstelpark. In de nabije omgeving vindt u winkelcentrum 'Het Gelderlandplein' dat o.a. beschikt over een grote Albert Heijn XL, verschillende winkels, horecagelegenheden en natuurlijk de gezellige Beethovenstraat. Het appartement is uitstekend bereikbaar met de auto (binnen enkele minuten op de Ring A-10, A2, etc.) en het openbaar vervoer zoals o.a. Station Zuid en de RAI met haar trein- en metroverbindingen. De vernieuwde Noord-Zuid lijn zorgt voor een snelle connectie naar het centrum van Amsterdam.
INDELING
Begane grond:
op de begane grond bevindt zich de hoofdentree, waar de brievenbussen en het bellentableau met videofoon geplaatst zijn en de bijbehorende berging. U kunt met de lift naar het appartement.
Royale entree, ruime hal met video-intercominstallatie. Vanuit de hal toegang tot alle kamers, zoals de zeer ruime woonkamer met het beschutte balkon en vele ramen. Een seperate keuken met o.a. een 4-pits gaskookplaat, inbouwafzuigkap en voldoende ruimte voor een koel/vries combinatie en de wasmachine en droger. Het appartement beschikt verder over 2 slaapkamers, een badkamer, en een berging.
ENERGIELABEL
Het appartement heeft een gunstig energielabel B.
REAGEREN
We verzoeken om voor deze woning online te reageren. Doe dit via de ‘reageer’-knop onderaan de pagina of via het contactformulier van Funda, VBO of Pararius. Je krijgt vanzelf bericht als een bezichtiging mogelijk is, we plannen in op basis van volgorde van reageren.
Objectieve criteria voor de toewijzing van een huurwoning bij NEWCURB Makelaars zijn:
Volgorde van reactie
Inkomstenbron
Soort arbeidsovereenkomst
Inkomensniveau (minimaal 3x de maandhuur)
Huurgeschiedenis
Gezinssamenstelling
Positieve screening
In alle gevallen adviseren wij op basis van objectieve criteria. Het is echter de eigenaar zelf die de woning gunt.
De informatie is door ons met de nodige zorgvuldigheid samengesteld. Onzerzijds wordt echter geen enkele aansprakelijkheid aanvaard voor enige onvolledigheid, onjuistheid of anderszins, dan wel de gevolgen daarvan. Alle opgegeven maten en oppervlakten zijn indicatief.