Beschrijving
Wonen tussen dorp en natuur, met ruimte in overvloed
In een rustige woonwijk van Bussum ligt deze royale twee-onder-een-kapwoning, een huis dat direct een warm en vertrouwd gevoel biedt. De ruime opzet en de verdeling over meerdere woonlagen bieden volop mogelijkheden voor wonen, werken en leven.
De woning beschikt over comfortabele leefruimtes en prettig perceel waardoor binnen en buiten op een natuurlijke manier met elkaar verbonden zijn. Dit maakt het huis geschikt voor uiteenlopende woonwensen en verschillende levensfasen.
Ook de ligging draagt bij aan het wooncomfort. De omgeving is groen en rustig, met dagelijkse voorzieningen, scholen en openbaar vervoer binnen handbereik. Daarnaast ligt de natuur en heide op korte afstand, ideaal voor een wandeling of fietstocht. Zo komen rust, bereikbaarheid en woonkwaliteit hier op prettige wijze samen.
Wij vertellen u graag meer...
H E T H A R T V A N H E T H U I S
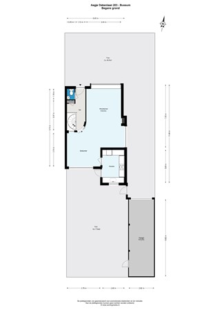
Via de entree aan de voorzijde betreedt u de woning. In de hal bevinden zich het toilet en de trapopgang naar zowel de verdiepingen als het souterrain. Vanuit de hal opent zich de woonkamer, het centrale leefgedeelte van het huis.
De woonkamer strekt zich uit over de woonlaag en is ingedeeld met een zitgedeelte aan de voorzijde en ruimte voor een royale eettafel richting de achtertuin. Het zitgedeelte is ruim opgezet en biedt volop plaats voor verschillende meubelopstellingen, waardoor de ruimte een open en luchtig karakter behoudt en letterlijk ruimte ademt. De parketvloer verbindt de verschillende delen van de ruimte en draagt bij aan de samenhang van het geheel. In het zitgedeelte is een open haard aanwezig, die een natuurlijk middelpunt vormt van de woonkamer. Daarnaast is de woonkamer voorzien van airconditioning, wat zorgt voor extra comfort en een aangenaam binnenklimaat gedurende alle seizoenen. Grote raampartijen zorgen voor een open verbinding met buiten. Via een deur aan de achterzijde is er directe toegang tot de tuin.
Aansluitend aan de woonkamer bevindt zich de keuken, die op prettige wijze is afgescheiden van de leefruimte. Deze is praktisch ingericht en voorzien van diverse inbouwapparatuur, waaronder een combi-oven, koelkast, vriezer, vaatwasser, gasfornuis en afzuigkap. De keuken biedt ruimte voor dagelijks gebruik en heeft eveneens de doorgang naar de achtertuin, waardoor koken en buiten eenvoudig met elkaar te combineren zijn.
U N I E K A A N D E Z E W O N I N G
Vanuit de hal brengt de trap u naar beneden, onder de begane grond, het souterrain in. Deze verdieping vormt een volwaardige extra woonlaag binnen de woning en leent zich voor uiteenlopende gebruiksmogelijkheden, zoals een werkruimte, hobbyruimte of aanvullende verblijfsruimte.
S L A P E N E N O N T S P A N N E N
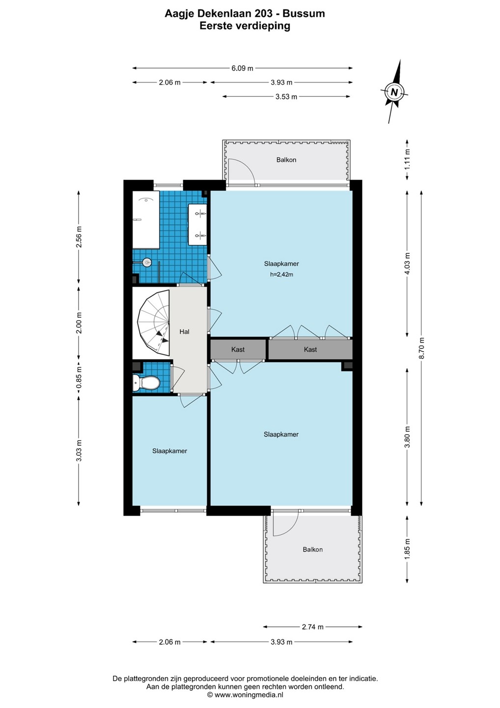
Via de trap in de hal bereikt u de eerste verdieping. Hier bevinden zich drie slaapkamers, waarvan twee riante aan de voor- en achterzijde, beide met balkon. Eén van deze slaapkamers is voorzien van airconditioning.
De badkamer is centraal gelegen op deze verdieping en is uitgerust met een ligbad, douche en wastafel. Daarnaast is er een separaat toilet aanwezig.
Aan de achterzijde van deze verdieping heeft het balkon voldoende ruimte voor een zit om te genieten van de zon met uitzicht over de tuin.
E E N V E R D I E P I N G V O L M O G E L I J K H E D E N
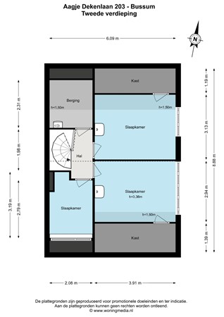
De tweede verdieping voegt nog eens drie extra slaapkamers toe aan de woning en biedt daarmee verdere flexibiliteit in het gebruik. Deze ruimtes zijn geschikt voor uiteenlopende woonwensen en kunnen naar eigen inzicht worden ingericht.
B U I T E N L E V E N
Aan de voorzijde van de woning bevindt zich een eigen oprit met plek voor minimaal twee auto’s en toegang tot de stenen garage van meer dan 8 meter diep. De achtertuin is is voorzien van een gazon dat overzicht en ruimte biedt. Het aanwezige groen zorgt voor een beschut gevoel en draagt bij aan de privacy.
De buitenruimte combineert daarmee ontspanning en gebruiksgemak op een natuurlijke manier. De prettige en zonnige achtertuin met veel groen en licht, is gunstig gelegen op het zuidoosten.
I D E A L E L I G G I N G T U S S E N D O R P E N N A T U U R
De woning is gelegen in een groene en rustige woonwijk met een prettige, kindvriendelijke sfeer. In de directe omgeving vind je volop groen en alle dagelijkse voorzieningen binnen handbereik. Op enkele minuten lopen ligt winkelcentrum Koekoeklaan met onder andere een grote Albert Heijn, bakker, slager, drogist, Gall & Gall en diverse andere winkels.
De bereikbaarheid is uitstekend. NS-station Bussum-Zuid bevindt zich op circa vijf minuten fietsafstand en ook een bushalte ligt op korte loopafstand. Met de auto zijn de uitvalswegen richting Amsterdam en Utrecht snel bereikbaar via de A1.
Voor ontspanning en recreatie ligt de Bussummerheide letterlijk om de hoek. Binnen enkele minuten wandel of fiets je de natuur in, ideaal voor een ochtendwandeling, sportieve fietstocht of een moment van ontspanning na een drukke werkdag. Ook bevindt zich hier een gezellig café-restaurant met een ruim terras.
K E N M E R K E N
• Royale twee-onder-een-kapwoning
• Ca. 205 m² aan ruime woonoppervlakte (NEN2580)
• Verdeling over vier volwaardige woonlagen: souterrain, begane grond, eerste en tweede verdieping
• Zes slaapkamers en complete badkamer met ligbad, douche en wastafel
• Grote lichte woonkamer met een prettige indeling in zit- en eetgedeelte en een open haard
• Ruime keuken met inbouwapparatuur (combi-oven, koelkast, vriezer, vaatwasser, gasfornuis en afzuigkap)
• Twee balkons
• Airconditioning voor extra comfort
• Prettige en zonnige achtertuin met veel groen en licht
• Stenen garage
• Eigen oprit met parkeergelegenheid voor meerdere auto’s op eigen terrein
• Energielabel C, geldig tot 2035
C O N D I T I E S
• Overdracht: in overleg
• Notaris: keuze koper (mits binnen 15 km)
• Clausules: ouderdom|asbest|NEN2580
I N T E R E S S E
Bent u enthousiast geworden over deze woning?
Voor meer informatie kunt u contact opnemen met ons kantoor — wij plannen graag een bezichtiging voor u in.
B I E D E N
Bieden op deze woning doet u via het DITALE BIEDFORMULIER. Na de bezichtiging ontvangt u een uitnodiging en toegang tot het online woningdossier.
Alle biedingen zijn onder voorbehoud van de volgende voorwaarden:
• De vermelde vraagprijs is slechts een uitnodiging tot het uitbrengen van een bod
• De verkoper(s) behouden zich uitdrukkelijk het recht voor om de opdracht te gunnen
• Tussentijdse verkoop voorbehouden
• Het uitbrengen van een bod betekent niet automatisch dat u in onderhandeling bent
Wij hebben deze informatie met de grootst mogelijke zorgvuldigheid samengesteld. Wij aanvaarden echter geen aansprakelijkheid voor eventuele onvolledigheden, onjuistheden of andere fouten, noch voor de gevolgen daarvan. De woning is gemeten volgens branche brede meetvoorschriften, gebaseerd op de NEN-2580-norm.