Beschrijving
Licht en sfeervol 2-kamerappartement met zonnig balkon, open haard en berging in Bussum!
Dit charmante en goed ingedeelde 2-kamerappartement van ca. 51 m² beschikt over een zonnig balkon op het zuiden, een sfeervolle open haard en een eigen berging. Gelegen op de begane grond in een rustige en groene woonomgeving, biedt de woning een prettige combinatie van comfort en functionaliteit.
Dankzij de grote raampartijen geniet het appartement van veel natuurlijk licht, wat zorgt voor een fijne en uitnodigende sfeer. De praktische indeling maakt het een ideale woning voor starters of alleenstaanden die op zoek zijn naar een comfortabele en instapklare plek in Bussum.
• Woonoppervlakte ca. 50.80 m² (NEN2850), 1 slaapkamer, 1 badkamer
• Lichte woonkamer met open haard en karakteristieke boog naar de keuken
• Grote raampartijen zorgen voor veel daglicht
• Slaapkamer met directe toegang tot het zonnige balkon
• Open keuken voorzien van kookplaat, afzuigkap en spoelbak
• Eiken PVC-vloer door het gehele appartement
• Badkamer met douche, toilet en wastafel
• Verwarming en warmwatervoorziening middels Intergas cv-installatie, vernieuwd eind 2024
• Praktische extra bergruimte in de hal
• Eigen berging op de begane grond
• Rustige ligging in een groene woonomgeving
• Op korte afstand van winkels, openbaar vervoer en natuurgebieden
C O N D I T I E S
• Overdracht: in overleg
• Notaris: keuze koper (mits binnen 15 km)
• Clausules: ouderdom | asbest | NEN2580
V V E
Vereniging van Eigenaars van het flatgebouw Wester Eng B te Bussum
De VvE wordt professioneel beheerd.
Er wordt periodiek vergaderd, er is een MJOP en opstalverzekering aanwezig.
• KvK-nummer: 51243067
• De VvE bestaat uit 28 appartementsrechten
• Aandeel A-5: 17250 / 387000
• Servicekosten voor de woning + berging bedragen €185,94 p.m.
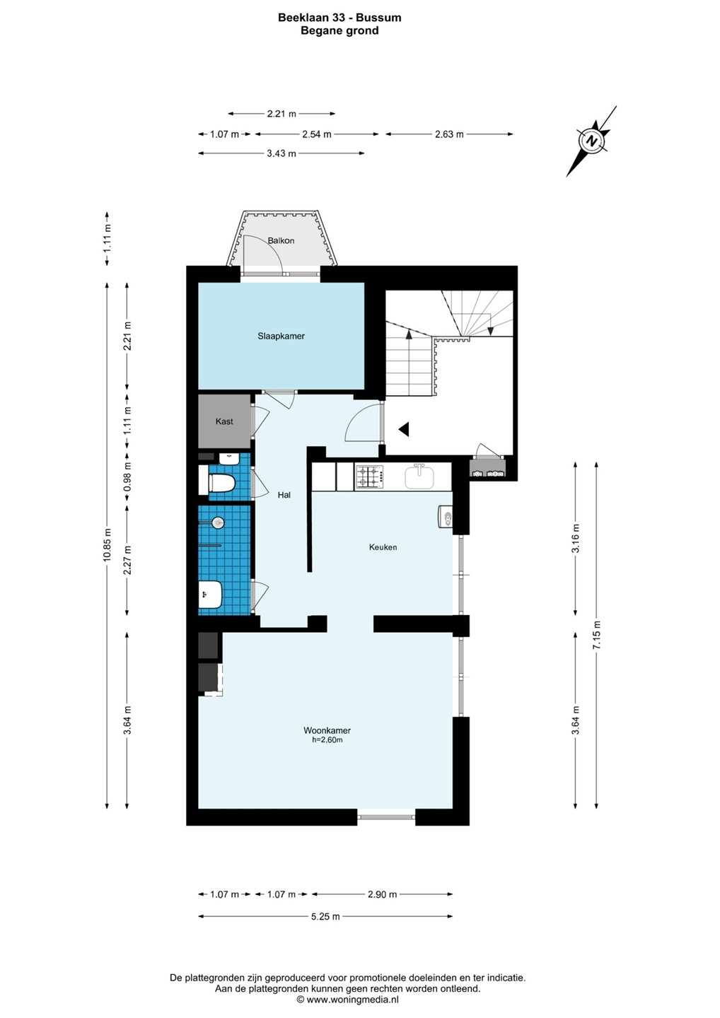
L A Y O U T
Het appartement aan de Beeklaan 33 in Bussum beschikt over een praktische en prettige indeling. Via de hal, die toegang biedt tot alle vertrekken, komt u binnen in de woning. De woonkamer is licht en ruim opgezet en dankzij de grote raampartijen valt het daglicht mooi naar binnen, wat zorgt voor een fijne en aangename sfeer.
De halfopen keuken bevindt zich aan de achterzijde en staat in directe verbinding met de woonkamer. De keuken is ruim van opzet en voorzien van diverse inbouwapparatuur, waardoor koken hier comfortabel en praktisch is.
De slaapkamer ligt eveneens aan de achterzijde van het appartement en biedt directe toegang tot het zonnige balkon. Hier kunt u in alle rust genieten van het buitenleven. De badkamer is verzorgd en functioneel ingericht met een douche en wastafel. Daarnaast beschikt de woning over een separaat toilet en een praktische bergkast in de hal.
Op de begane grond bevindt zich een eigen berging, ideaal voor het stallen van fietsen en het opbergen van extra spullen.
W O N E N I N B U S S U M
Het appartement is gelegen in een rustige en groene woonomgeving, op korte afstand van de uitgestrekte Gooise heide. In de directe omgeving vindt u diverse winkels, supermarkten en gezellige horecagelegenheden.
Binnen enkele minuten bereikt u het levendige centrum van Bussum, met een gevarieerd aanbod aan winkels, speciaalzaken, restaurants en terrassen. Bussum staat bekend om zijn prettige woonklimaat, combinatie van groen en voorzieningen en de centrale ligging in het Gooi.
Het NS-station Bussum Zuid ligt op slechts enkele minuten fietsen, met snelle verbindingen richting onder andere Amsterdam en Utrecht. Ook de uitvalswegen, zoals de A1, zijn goed bereikbaar, waardoor u eenvoudig de regio en daarbuiten kunt verkennen.
Voor liefhebbers van natuur en recreatie liggen de prachtige Gooise heidevelden, bossen en diverse wandel- en fietsroutes letterlijk om de hoek — ideaal om te ontspannen en te genieten van de omgeving.
I N T E R E S S E
Bent u enthousiast geworden over deze woning? Voor meer informatie kunt u contact opnemen met ons kantoor — wij plannen graag een bezichtiging voor u in.
B I E D E N
Bieden op deze woning doet u via het DITALE BIEDFORMULIER. Na de bezichtiging ontvangt u een uitnodiging en toegang tot het online woningdossier.
Alle biedingen zijn onder voorbehoud van de volgende voorwaarden:
• De vermelde vraagprijs is slechts een uitnodiging tot het uitbrengen van een bod
• De verkoper(s) behouden zich uitdrukkelijk het recht voor om de opdracht te gunnen
• Tussentijdse verkoop voorbehouden
• Het uitbrengen van een bod betekent niet automatisch dat u in onderhandeling bent
Wij hebben deze informatie met de grootst mogelijke zorgvuldigheid samengesteld. Wij aanvaarden echter geen aansprakelijkheid voor eventuele onvolledigheden, onjuistheden of andere fouten, noch voor de gevolgen daarvan. De woning is gemeten volgens branche brede meetvoorschriften, gebaseerd op de NEN-2580-norm.