Description
New for rent, a high-quality and STYLISH 4-ROOM APARTMENT located ON THE STATION SQUARE of Hilversum! The 1930s building previously housed a well-known bridal fashion store in Hilversum and the apartment on the 1st floor has a UNIQUE PANORAMIC VIEW through the connected windows over the entire round corner in the living room.
FEATURES
• Completely renovated ('22) luxury city apartment (approx. 95m2)
• Energylabel B
• Upholstered
• 3 bedrooms
• Located in the center of Hilversum
• Super panoramic view
• Luxurious finish
• Kitchen with built-in appliances and cooking island
• Underfloor heating
• Furnished (incl. curtains, floor, ceiling lighting), ready to move in
CONDITIONS
• Available from July 1, 2025
• Furnished
• Rental period minimum 12 months, indefinite period
• Deposit 2 x the basic monthly rent
• Rental price is excl. advance gas/water/electricity/service costs of € 275,-
• No pets allowed
• Award subject to owner's approval
• Vbo screening (financial) applicable
• Smoking is not allowed in the home
LIVING IN HILVERSUM
The apartment is located in the center, on the corner of Stationsstraat / Koninginneweg and Stationsplein. Just cross the street and you can enter Hilversum Central Station. In addition, the Hilvertshof shopping center, the cozy restaurants on the Groest and all necessary daily amenities, including the market square, VUE cinema, various fitness centers and the Mout food hall are just around the corner. Other facilities such as (international) schools and sports facilities are within walking distance. By train you can reach both Utrecht Central and Amsterdam Central within 25 minutes. By car, the cities of Amsterdam, Utrecht & Amersfoort are less than half an hour away.
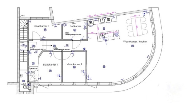
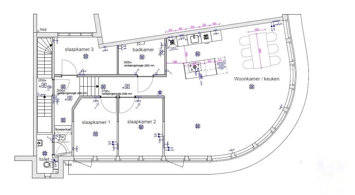
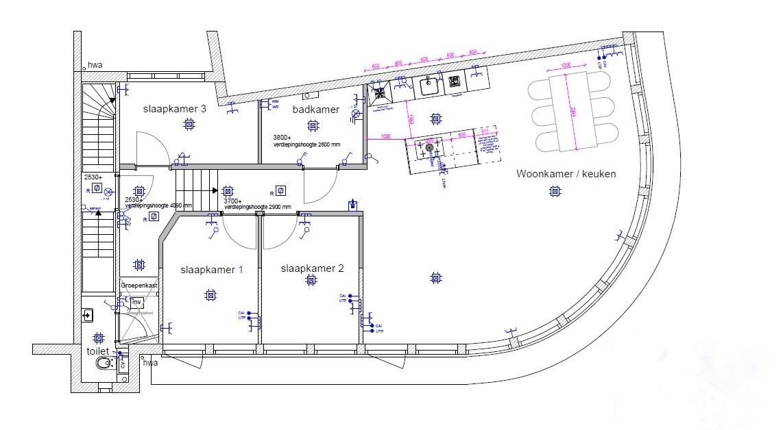
LAYOUT
The central entrance to the apartments is located on the left side of the building. The stairs lead to the 1st floor, access to the spacious apartment with a living area of approximately 95m2 and 3 bedrooms.
The entire house has a sleek herringbone floor and smoothly plastered painted walls. The playful hall provides access to the 3 bedrooms, bathroom, separate toilet, and spacious living room. The luxurious open kitchen is stylish, with handleless matt black panels, a composite worktop and matt black taps. In addition, the kitchen is equipped with high-quality built-in appliances (Bosch), a combination oven/microwave, dishwasher, fridge/freezer, 5-burner induction hob, and a stainless steel wall hood.
The three bedrooms, varying in size, can be reached via the hall. Furthermore, a stylishly finished bathroom can be found from the hall. This completes the house; luxurious walk-in shower, high-quality stainless steel Cocoon shower set and taps, a grey floor tile, wall tiles up to the ceiling, mirror, teak bathroom furniture with handleless soft-close drawers and ceramic sink with two matt black taps. In the hall there is also an internal storage space with connection for the washing machine/dryer.
The apartment is fully equipped with underfloor heating, double glazing and has a fibre optic internet connection. In short, a very complete spacious apartment with a unique panoramic view!
R E A G E R E N D S E L E C T I O N
We request that you respond online for this property. Do this via the 'respond' button at the bottom of the page or via the Funda, VBO or Pararius contact form. You will automatically receive a message when a viewing is possible, we will schedule based on the order of response.
Objective criteria for the allocation of a rental property at NEWCURB Makelaars are:
Order of response
Source of income
Type of employment contract
Income level (at least 3x the monthly rent)
Rental history
Family composition
Positive screening
In all cases we advise on the basis of objective criteria. However, it is the owner himself who awards the property.
The information has been compiled by us with the necessary care. However, no liability is accepted on our part for any incompleteness, inaccuracy or otherwise, or the consequences thereof. All stated sizes and surfaces are indicative.
This apartment is offered by NEWCURB Makelaars. For more information or to schedule a viewing, please contact our office! The information has been compiled by us with the necessary care. However, no liability is accepted on our part for any incompleteness, inaccuracy or otherwise, or the consequences thereof. All stated sizes and surfaces are indicative.