Beschrijving
Ideale gezinswoning op een fijne locatie in Amstelveen met Energielabel A+
Klaar voor jouw volgende stap!
In het natuurrijke, kindvriendelijke, geliefde Westwijk in Amstelveen staat deze goed onderhouden, energiezuinige tussenwoning met een woonoppervlakte van ca. 154 m², verdeeld over drie verdiepingen. De woning beschikt over 4 (5 mogelijk) slaapkamers, 2 badkamers, serre en een zonnige tuin op het zuidwesten. Dankzij de overvloed aan daglicht en ruimtelijke, doordacht ingedeelde leefruimte is dit een lichte en comfortabele woning waar je je direct thuis zult voelen.
De woning biedt volop ruimte voor gezinsleven. Comfort en duurzaamheid gaan hier hand in hand dankzij de 10 recent geplaatste zonnepanelen – klaar voor een energiezuinige toekomst.
Gelegen in een rustige woonomgeving, met scholen, speelplekken, kunst en cultuur, winkels en gezondheid voorzieningen binnen handbereik. Middels tramhalte Westwijk (op 400 m afstand) is Amsterdam Zuid in 20 minuten bereikbaar.
Kortom, de woning en omgeving bieden een perfecte balans tussen het vrije woongenot en bereikbaarheid!
K E N M E R K E N
• Ruime gezinswoning van 154m2 met uitzicht op sierwater, een zonnige achtertuin op het zuidwesten, 4 slaapkamers en 2 badkamers
• Gunstige en rustige ligging nabij recreatiegebieden, openbaar vervoer, goede (internationale)scholen, winkelcentra en verschillende uitvalswegen
• Achtertuin met handige achterom en vrijstaande berging voor (fietsen)opslag
• Lichte woonkamer met parket vloer, sfeervolle natuurstenen schouw en hoogte van maar liefst 3,77 m
• Stijlvolle serre met openslaande deuren, geheel voorzien van HR-isolatieglas, zorgt voor vloeiende overgang tussen binnen en buiten
• Praktisch ingedeelde keuken met gas kookplaat, vaatwasmachine, afzuiger, oven
• 4 goed formaat slaapkamers waarvan 1 met ensuite badkamer. Eventueel een 5e te creëren. Ideaal voor grotere gezinnen, thuiswerken of inrichten van een logeerkamer
• 1e badkamer voorzien van bad met douche, wastafelmeubel, handdoekdroogrek en tweede toilet
• Vliering voor extra opslag
• Energiezuinig label A+, geldig tot februari 2035
• 10 zonnepanelen (Geïnstalleerd in 2025, 440 kWh per paneel) en Growatt omvormer
• Glasvezel internet beschikbaar
• Intergas Kombi Kompakt HR 107 cv-ketel, bouwjaar 2004
• Bouwjaar 1996
L A Y O U T
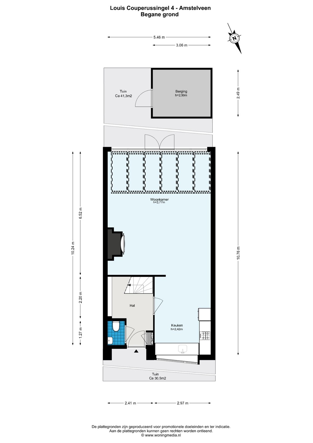
Begane grond:
De woning wordt betreden via een verzorgde voortuin. In de hal bevinden zich het toilet, technische ruimte, een praktische kapstok en trap met open design naar de verdiepingen. Vanuit de hal is er toegang tot zowel de keuken als de woonkamer. De keuken, voorzien van inbouwapparatuur, ligt aan de voorzijde en staat in verbinding met de woonkamer en heeft zicht op de natuurrijke omgeving en rustige buurt. De woonkamer geeft door de uitbouw met veel glas in combinatie met unieke hoogte van 3,77 m een heerlijk ruim en licht gevoel. De achtertuin is verzorgd aangelegd en beschikt over een vrijstaande berging en achterom.
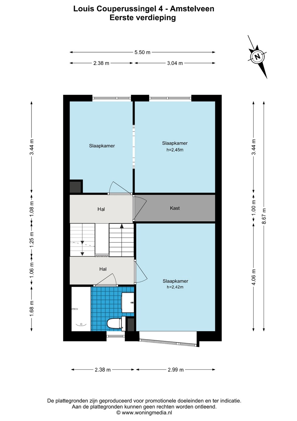
Eerste verdieping:
Vanaf de overloop zijn 2 slaapkamers, een badkamer en een vaste kast bereikbaar.
Aan de achterzijde van de woning bevindt zich een ruime slaapkamer (bestaande uit 2 ruimtes), verbonden door binnendeur met artistieke boog. Aan de voorzijde ligt een derde goed formaat slaapkamer. De badkamer is voorzien van wastafelmeubel, spiegel, zwevend toilet, handdoekdroogrek en een ligbad met douche. Tussen de overloop en de slaapkamer aan de achterzijde bevindt zich een praktische vaste kast.
Tweede verdieping:
Deze verdieping beschikt over twee ruime slaapkamers, waarvan één uitgestrekt over de gehele breedte van de woning incl. badkamer ensuite. Deze bevindt zich aan de achterzijde. Aan de voorzijde ligt een tweede slaapkamer met trap die toegang geeft tot een vliering. Daarnaast een technische ruimte met aansluiting voor een wasmachine en droger.
C O N D I T I E S
• Gunning: voorbehoud verkopers
• Overdracht: in overleg
• Notaris: Bellaar Amstelveen
W O N E N I N A M S T E L V E E N
De woning ligt in de gewilde woonomgeving Westwijk; een natuurlijke en serene omgeving met alle gewenste voorzieningen binnen handbereik.
Direct rondom de woning zijn groene plantsoenen, bomen en wandelpaden te vinden. Op korte afstand liggen het Jac. P. Thijssepark en het Amsterdamse Bos, waar je heerlijk kunt wandelen, fietsen of ontspannen in de natuur. De nabijgelegen Middelpolder biedt nog meer recreatiemogelijkheden, diverse sportclubs als Golf Amsteldijk, Nationaal Tennis Centrum de Kegel en fitnesscentra. Voor een gezellig uitje met het gezin zijn Speelboerderij Elsenhove en Clara Maria Kaas- en Klompenmakerij te bezoeken. Cultuur en historie doe je op in het Cobra museum, Schouwburg Amstelveen en op buitenplaats Wester-Amstel.
Amstelveen staat bekend om haar toponderwijs, met zowel Nederlandse als internationale scholen van hoog niveau, zoals Amity en Amstelland International School. Daarnaast bevindt zich op 10 minuten afstand Ziekenhuis Amstelland, tandartsenpraktijk en apotheek zijn om de hoek.
Openbaar vervoer: Op slechts enkele minuten loopafstand bevinden tramhalte Westwijk, waardoor je binnen 20 minuten in hartje Amsterdam bent. Busverbindingen naar o.a. Schiphol en Haarlem zijn ook nabij.
Uitvalswegen: Met de auto ben je binnen enkele minuten op de A9, A2 en A10, waardoor rondom liggende steden snel bereikbaar zijn.
Winkels: Winkelcentrum Westwijk is op loopafstand te bereiken, Winkelcentra Kostverlorenhof (met een Albert Heijn en verswinkels ) en Stadshart Amstelveen met luxe winkels en restaurants liggen op korte afstand.
S A M E N V A T T I N G
Een ruime, lichte, energiezuinige (A+) gezinswoning met uitbouw en zonnige tuin op een toplocatie in Amstelveen!
Voor meer informatie kunt u contact opnemen met ons kantoor — wij plannen graag een bezichtiging voor u in.
E E R L I J K B I E D E N
Het bieden op deze woning verloopt via het digitale biedlogboek Eerlijk Bieden. Hiervoor volgt na bezichtiging een uitnodiging en is tevens toegang tot het online woning dossier.
De informatie is door ons met de nodige zorg samengesteld. Voor enige onvolledigheid, onjuistheid of anderszins, dan wel de gevolgen daarvan, wordt onzerzijds echter geen aansprakelijkheid aanvaard. De woning is ingemeten volgens de branche brede meetinstructie, gebaseerd op de NEN-2580-norm.