Beschrijving
Karakteristiek dubbel bovenhuis met panoramisch uitzicht over het Olympiaplein – Amsterdam Oud-Zuid
Licht, ruimte en karakter op één van de mooiste hoeken van Amsterdam.
Aan het geliefde Olympiaplein, midden in het statige Amsterdam Oud-Zuid, ligt deze bijzonder lichte en royaal dubbel bovenhuis van circa 252 m², verdeeld over de bovenste twee etages met een bergzolder erboven.
De woning is gelegen op een unieke hoekpositie met een panoramisch uitzicht over het plein en beschikt over maar liefst drie zonnige balkons op het zuiden, oosten en westen.
Dankzij de hoekligging, de grote en vele raampartijen en is dit een woning vol licht, karakter en mogelijkheden. De ruime opzet en het royale woonoppervlak bieden talloze indelingsmogelijkheden — van een comfortabel gezinshuis tot een woning met gastenverdieping of dubbele bewoning.
Gelegen in een karakteristiek jaren ’30-pand, vormt dit appartement de ideale basis om naar eigen inzicht een eigentijds en stijlvol thuis te creëren, op een absolute toplocatie in het geliefde Amsterdam Oud-Zuid.
Een uitgebreide VIRTUELE TOUR van de woning is beschikbaar voor een volledig beeld van de indeling en de ruimtelijke beleving.
K E N M E R K E N
• Woonoppervlakte 251.90 m² (conform NEN2580)
• Unieke hoekligging met panoramisch uitzicht over het Olympiaplein
• Gelegen op de bovenste twee etages van een karakteristiek jaren ’30-pand
• Maar liefst 6 slaapkamers, 2 keukens en 3 badkamers – ideaal voor een groot gezin of werk-/hobbyruimtes/gastenkamers
• Woonkamer ensuite over de volle breedte - Vol licht en karakter, met grote raampartijen en authentieke details
• Drie balkons met verschillende zonliggingen (zuid, oost en west )
• Energielabel D, geldig tot 14 november 2033
• Erfpacht afgekocht tot 2055 en eeuwigdurend afgekocht sinds 2023 – geen canon meer verschuldigd
• Actieve VvE, servicekosten €346,67 per maand
• Kozijnen buitenzijde recent geheel geschilderd
• Toplocatie in Oud-Zuid, nabij Zuidas, Beethovenstraat, diverse parken en sport mogelijkheden voor de deur
• Bouwjaar 1938
C O N D I T I E S
• Vraagprijs EU 1.695.000 k.k.
• Overdracht: in overleg
• Notaris: projectnotaris
• Bouwkundige keuring aanwezig
• Clausules: Niet-zelfbewoning, bouwjaar/ouderdomclausule, As is, Where is, NEN2580, en Asbestclausule zijn van toepassing
I N D E L I N G - W O O N B E L E V I N G
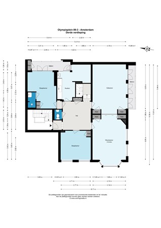
3e etage
Binnenkomst in de ruime entreehal met plaats voor een garderobe en een separaat toilet.
Aan de voorzijde bevindt zich de royale woonkamer en-suite, die zich uitstrekt over de volle diepte van de woning. De woonkamer beschikt aan de hoekzijde over een sfeervolle erker, waardoor de ruimte baadt in licht en een panoramisch uitzicht biedt over het Olympiaplein.
De originele schuifdeuren verdelen de kamer op klassieke wijze in een zit- en eetgedeelte, met volop mogelijkheden voor een royale leefruimte of een combinatie van wonen en werken.
Aan de achterzijde geven drie openslaande deuren toegang tot het balkon op het zuiden, waar je de hele dag van de zon kunt genieten.
Verder bevinden zich op deze verdieping twee slaapkamers. De slaapkamer aan de voorzijde beschikt over vaste kasten en een prettig uitzicht over het plein.
De tweede slaapkamer ligt aan de achterzijde, naast de badkamer die is voorzien van een douche en wastafel.
Aangrenzend bevindt zich de keuken, uitgerust met een eenvoudig keukenblok. Zowel de keuken als de slaapkamer bieden toegang tot het tweede balkon aan de oostzijde, ideaal voor een ontbijt in de ochtendzon.
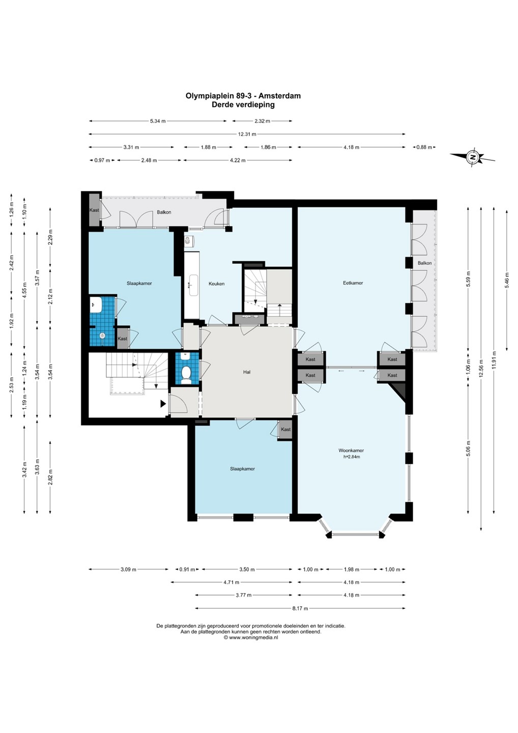
4e etage
Vierde verdieping (achterzijde)
Via de vaste trap kom je op de bovenste woonverdieping, met een ruim overloop, drie slaapkamers en een badkamer. Twee slaapkamers waarvan een met openslaande deuren naar het balkon aan de oostzijde, ideaal om de dag te beginnen in de ochtendzon. De grootste slaapkamer is gelegen aan de andere zijde en heeft door de vele ramen op het zuiden prachtig licht over de dag. Ook is hier toegang via de vlizo trap tot de riante zolder.
Vierde verdieping (voorzijde)
Via de centrale trap kom je op de bovenste woonverdieping aan de voorzijde. Hier is een woon- en eetkamer met open keuken — een sfeervolle leefruimte met vrij uitzicht over het Olympiaplein. De open indeling biedt volop mogelijkheden voor het realiseren van een moderne keuken met kookeiland en een royale eethoek en dankzij de hoekligging ook wederom hier volop licht. De slaapkamer aan de voorzijde heeft hier openslaande deuren naar het balkon op het westen en aan je linkerzijde zicht op de gebouwen van de Zuid-As.
De indeling biedt volop vrijheid om de verdieping naar eigen inzicht vorm te geven — bijvoorbeeld door het creëren van een aparte gastenverdieping met eigen voorzieningen.
Zolderverdieping
De woning beschikt tevens over een royale zolderverdieping (ca. 37 m²), met een maximale hoogte van 4,14 meter.
W O N E N I N O U D - Z U I D
De ligging is ronduit ideaal: direct aan het Olympiaplein, in het prestigieuze Oud-Zuid, op steenworp afstand van de Zuidas.
Voor de dagelijkse boodschappen en speciaalzaken kun je terecht aan de Beethovenstraat, Stadionweg en Marathonweg, met onder meer Albert Heijn, Marqt, Ekoplaza en Le Fournil. In de buurt vind je diverse gezellige cafés en restaurants, zoals Bar BAUT, Café Kiebêrt en Bar Kaspar.
Voor ontspanning liggen het Vondelpark en Beatrixpark op loopafstand, en sportfaciliteiten zoals tennis, padel en voetbal bevinden zich letterlijk voor de deur aan het Olympiaplein.
De bereikbaarheid is uitstekend: met de A10 op enkele minuten rijden en Station Amsterdam Zuid en tramhalte Olympiaplein op loopafstand — met in 6 minuten een directe trein naar Schiphol.
E R F P A C H T
• De woning staat op grond van de gemeente Amsterdam (erfpacht).
• De erfpacht voor Olympiaplein 89-III is afgekocht tot 2055 én daarna eeuwigdurend afgekocht sinds december 2023.
Er is dus geen canon meer verschuldigd.
V E R E N I G I N G V A N E I G E N A A R S (VvE)
Vereniging van Eigenaars Olympiaplein 89-91 te Amsterdam, gevestigd te Amsterdam.
De VvE wordt professioneel beheerd door Falcon VvE Management B.V.
Er wordt periodiek vergaderd, jaarcijfers en begroting 2025 zijn beschikbaar en er is een opstalverzekering aanwezig.
• KvK-nummer: 34389416
• Aandeel huisnummer 89-III: 40/100e
• Servicekosten voor de woning bedragen EUR 346,67
I N T E R E S S E
Bent u enthousiast geworden over deze woning?
Voor meer informatie kunt u contact opnemen met ons kantoor — wij plannen graag een bezichtiging voor u in.
B I E D E N
Bieden op deze woning doet u via het eerlijk bieden DIGITALE BIEDFORMULIER. Na de bezichtiging ontvangt u een uitnodiging en toegang tot het online woningdossier.
Alle biedingen zijn onder voorbehoud van de volgende voorwaarden:
• De vermelde vraagprijs is slechts een uitnodiging tot het uitbrengen van een bod
• De verkoper(s) behouden zich uitdrukkelijk het recht voor om de opdracht te gunnen
• Tussentijdse verkoop voorbehouden
• Het uitbrengen van een bod betekent niet automatisch dat u in onderhandeling bent
Wij hebben deze informatie met de grootst mogelijke zorgvuldigheid samengesteld. Wij aanvaarden echter geen aansprakelijkheid voor eventuele onvolledigheden, onjuistheden of andere fouten, noch voor de gevolgen daarvan. De woning is gemeten volgens branche brede meetvoorschriften, gebaseerd op de NEN-2580-norm.